Gallery

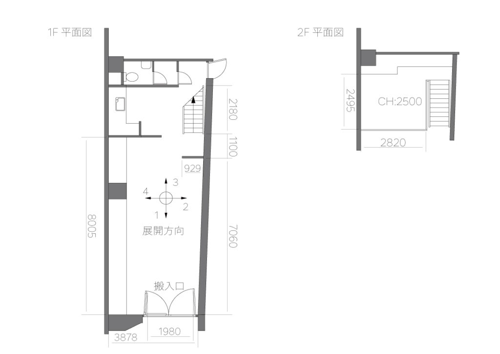
◽️1階 平面図

◽️2階 平面図

◽️1,2階 立面

◽️1,2階 立面